The Conference Center
The Conference Center
315 Cleveland Avenue
Columbus, OH 43215
Recently renovated The Conference Center offers 13,000 sq. ft. of flexible meeting space on one convenient level. Most rooms are equipped with ceiling-mounted video/data projectors and screens. Each room also has individual climate control. The Ballroom has 23-foot floor-to-ceiling windows with motorized sunshades, and lighting controlled by touch panel screens. Our facility offers complimentary wireless internet.
Floor Plans and Available Spaces
Meeting Rooms


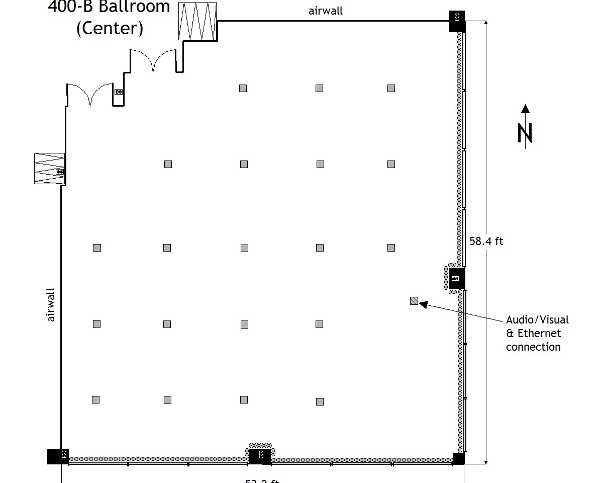
Room Size: 4,700 sq. ft.
Room Capacity: 250 (Classroom), 400 (Theatre), 300 (Dining)


Room Size: 700 sq. ft.
Room Capacity: 32 (Classroom), 50 (Theatre), 40 (Dining)

Room Size: 3,000 sq. ft.
Room Capacity: 160 (Classroom), 260 (Theatre), 160 (Dining)

Room Size: 1,000 sq. ft.
Room Capacity: 48 (Classroom), 60 (Theatre), 60 (Dining)


Room Dimensions: 26' - 4" x 25' - 0" (600 square ft.) Ceiling height 9'-6"
Room Capacity: 32 (Classroom), 50 (Theatre), 40 (Dining)
Full Room


Room Dimensions: 53' - 5" x 35' - 1" (412 A & B combined)
Room Capacity: 84 (Classroom), 120 (Theatre), 100 (Dining)
412 A
Square Feet: 800 (A)
Room Capacity: 36 (Classroom), 50 (Theatre), 50 (Dining)
412 B
Square Feet: 800 (B)
Room Capacity: 36 (Classroom), 50 (Theatre), 50 (Dining)
414 Full Room


Room Dimensions: 54' - 2" x 35' - 1" (414 A & B combined)
Room Capacity: 84 (Classroom), 120 (Theatre), 100 (Dining)
414 B
Square Feet: 900 (B)
Room Capacity: 36 (Classroom), 50 (Theatre), 50 (Dining)
414 A
Square Feet: 850 (A)
Room Capacity: 36 (Classroom), 50 (Theatre), 50 (Dining)


Room Dimensions: 26' - 4" x 25' - 0" (600 square ft.) Ceiling height 9'-6"
Room Capacity: 32 (Classroom), 50 (Theatre), 40 (Dining)

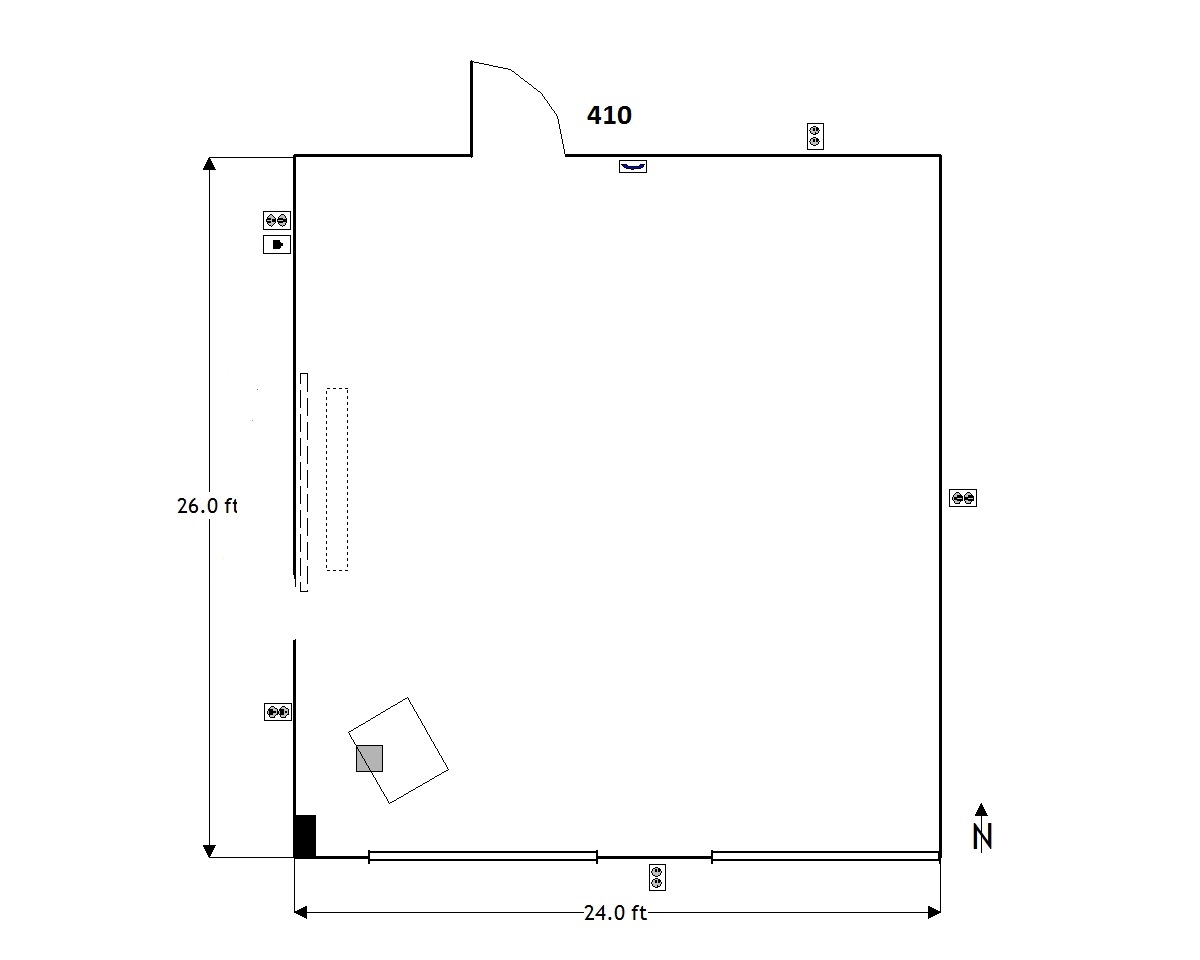
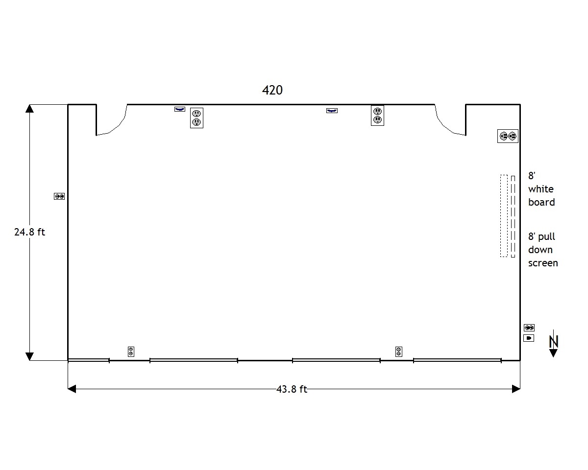
Room Dimensions: 43' - 9" x 25' - 0"
Room Capacity: 64 (Classroom), 72 (Theatre), 70 (Dining)


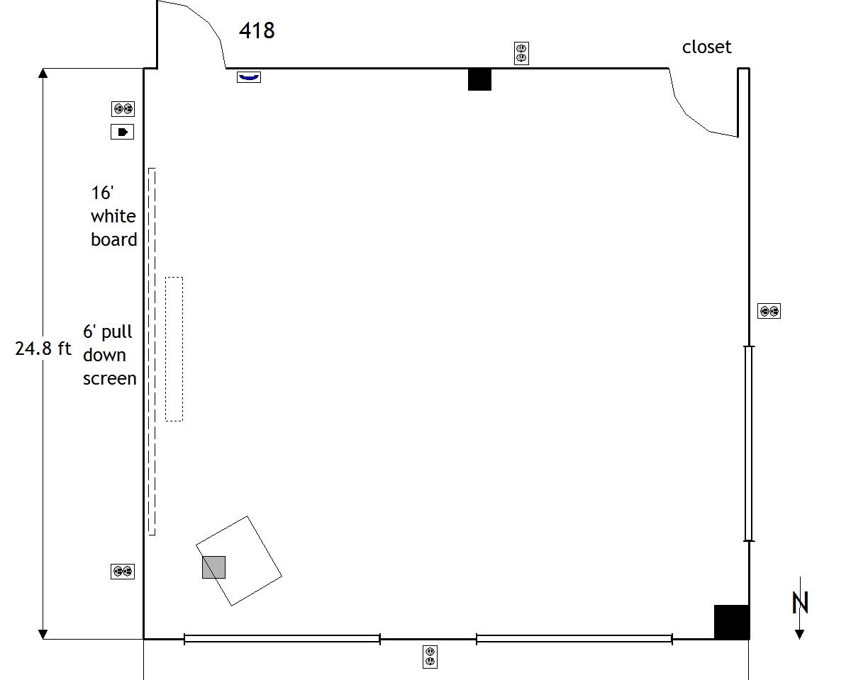
Room Dimensions: 24' - 8" x 25' - 0"
Room Capacity: 12 (Conference Style)
Other Spaces


Room Dimensions: 78 ft x 33 ft
Room Capacity: 22 (Trade show booths), 140 (Theatre), 130 (Reception)
Pricing
Whether you're looking for the main ballroom or a small conference room, we have what you need for your next event. Please contact one of our event professionals for pricing at (614) 287-5500.


